Manukau City Directions . cnr great south road & manukau station road. You will come to a set of lights at. there are 6 ways to get from manukau city to auckland city by train, bus, taxi, or car. directions to manukau city centre (manukau central) with public transport. find local businesses, view maps and get driving directions in google maps. directions to manukau city (manukau central) with public transport. The following transport lines have routes that pass near. drive south down the southern motorway taking the left turn at the manukau city turn off. there are 5 ways to get from auckland to manukau city by train, bus, taxi, car, or shuttle. Select an option below to see step. The following transport lines have routes that pass near. locate your favourite store using our handy centre map with level by level directories of stores, key facilities and amenities at.
from www.nzstrong.co.nz
directions to manukau city (manukau central) with public transport. cnr great south road & manukau station road. The following transport lines have routes that pass near. You will come to a set of lights at. locate your favourite store using our handy centre map with level by level directories of stores, key facilities and amenities at. there are 5 ways to get from auckland to manukau city by train, bus, taxi, car, or shuttle. directions to manukau city centre (manukau central) with public transport. there are 6 ways to get from manukau city to auckland city by train, bus, taxi, or car. Select an option below to see step. find local businesses, view maps and get driving directions in google maps.
Manukau Bus Station NZ Strong
Manukau City Directions The following transport lines have routes that pass near. You will come to a set of lights at. The following transport lines have routes that pass near. find local businesses, view maps and get driving directions in google maps. drive south down the southern motorway taking the left turn at the manukau city turn off. directions to manukau city (manukau central) with public transport. there are 5 ways to get from auckland to manukau city by train, bus, taxi, car, or shuttle. Select an option below to see step. there are 6 ways to get from manukau city to auckland city by train, bus, taxi, or car. locate your favourite store using our handy centre map with level by level directories of stores, key facilities and amenities at. The following transport lines have routes that pass near. cnr great south road & manukau station road. directions to manukau city centre (manukau central) with public transport.
From www.pinterest.com
Pin by SHONA SMITH on Maps Map, Directions, Locations Manukau City Directions there are 5 ways to get from auckland to manukau city by train, bus, taxi, car, or shuttle. drive south down the southern motorway taking the left turn at the manukau city turn off. Select an option below to see step. locate your favourite store using our handy centre map with level by level directories of stores,. Manukau City Directions.
From www.kiwibase.co.nz
Local Businesses In Manukau City Centre — KiwiBase Manukau City Directions drive south down the southern motorway taking the left turn at the manukau city turn off. there are 5 ways to get from auckland to manukau city by train, bus, taxi, car, or shuttle. You will come to a set of lights at. directions to manukau city centre (manukau central) with public transport. cnr great south. Manukau City Directions.
From neosigns.co.nz
Kmart Manukau Neo Signs Manukau City Directions drive south down the southern motorway taking the left turn at the manukau city turn off. You will come to a set of lights at. Select an option below to see step. directions to manukau city (manukau central) with public transport. locate your favourite store using our handy centre map with level by level directories of stores,. Manukau City Directions.
From www.pinterest.com
Great Mall Center Map Manukau City Directions drive south down the southern motorway taking the left turn at the manukau city turn off. find local businesses, view maps and get driving directions in google maps. Select an option below to see step. cnr great south road & manukau station road. there are 6 ways to get from manukau city to auckland city by. Manukau City Directions.
From ourauckland.aucklandcouncil.govt.nz
Manukau set for transformation OurAuckland Manukau City Directions directions to manukau city centre (manukau central) with public transport. Select an option below to see step. directions to manukau city (manukau central) with public transport. there are 6 ways to get from manukau city to auckland city by train, bus, taxi, or car. The following transport lines have routes that pass near. You will come to. Manukau City Directions.
From stock.adobe.com
Manukau Heads, Auckland, New Zealand. Minimalistic road map with black Manukau City Directions Select an option below to see step. find local businesses, view maps and get driving directions in google maps. directions to manukau city centre (manukau central) with public transport. there are 5 ways to get from auckland to manukau city by train, bus, taxi, car, or shuttle. cnr great south road & manukau station road. Web. Manukau City Directions.
From benscities.blog
Catching up with Manukau CitiesSkylines UrbanGeography Ben's Cities Manukau City Directions cnr great south road & manukau station road. directions to manukau city centre (manukau central) with public transport. The following transport lines have routes that pass near. drive south down the southern motorway taking the left turn at the manukau city turn off. locate your favourite store using our handy centre map with level by level. Manukau City Directions.
From www.unicornbooks.co.nz
HISTORIC BUILDINGS IN MANUKAU CITY Manukau City Council Manukau City Directions cnr great south road & manukau station road. You will come to a set of lights at. directions to manukau city centre (manukau central) with public transport. locate your favourite store using our handy centre map with level by level directories of stores, key facilities and amenities at. there are 5 ways to get from auckland. Manukau City Directions.
From kura.aucklandlibraries.govt.nz
CONTENTdm Manukau City Directions locate your favourite store using our handy centre map with level by level directories of stores, key facilities and amenities at. directions to manukau city (manukau central) with public transport. cnr great south road & manukau station road. The following transport lines have routes that pass near. find local businesses, view maps and get driving directions. Manukau City Directions.
From architizer.com
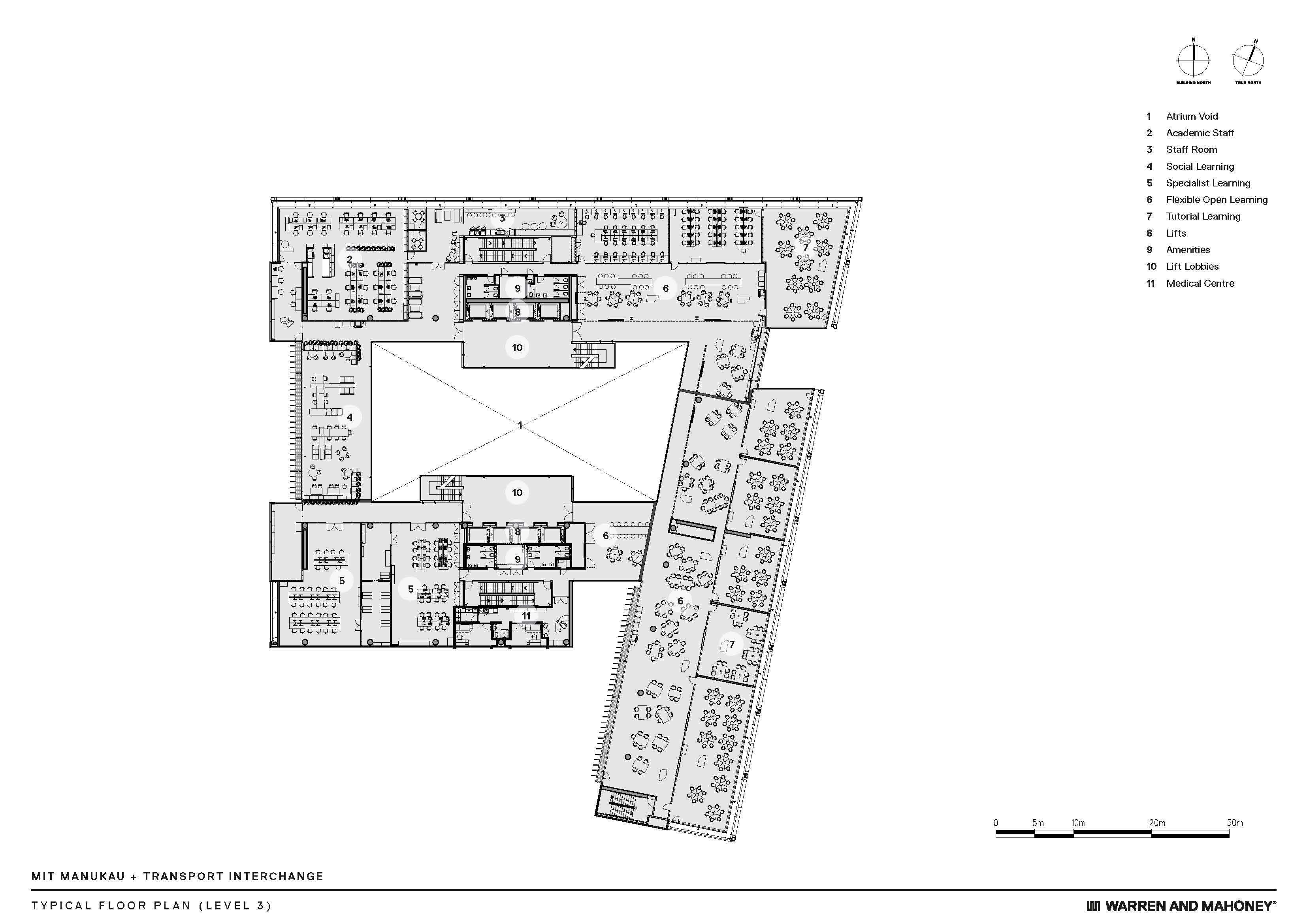
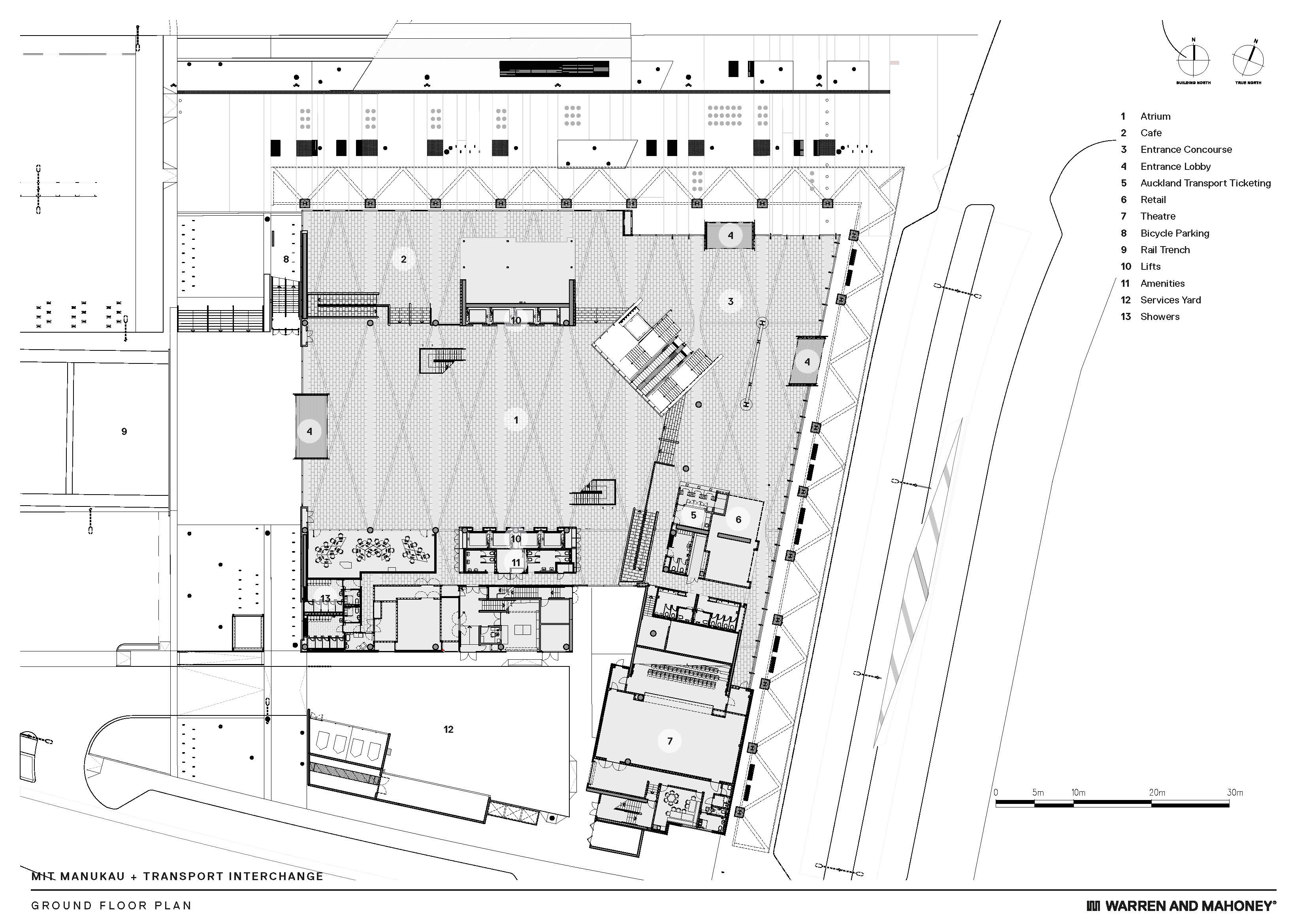
MIT Manukau & Transport Interchange by Warren and Mahoney Architizer Manukau City Directions find local businesses, view maps and get driving directions in google maps. The following transport lines have routes that pass near. You will come to a set of lights at. The following transport lines have routes that pass near. there are 5 ways to get from auckland to manukau city by train, bus, taxi, car, or shuttle. Web. Manukau City Directions.
From benscities.blog
Manukau Ben's Cities Manukau City Directions there are 5 ways to get from auckland to manukau city by train, bus, taxi, car, or shuttle. locate your favourite store using our handy centre map with level by level directories of stores, key facilities and amenities at. You will come to a set of lights at. directions to manukau city (manukau central) with public transport.. Manukau City Directions.
From architizer.com
MIT Manukau & Transport Interchange by Warren and Mahoney Architizer Manukau City Directions You will come to a set of lights at. The following transport lines have routes that pass near. cnr great south road & manukau station road. Select an option below to see step. there are 6 ways to get from manukau city to auckland city by train, bus, taxi, or car. locate your favourite store using our. Manukau City Directions.
From kura.aucklandlibraries.govt.nz
CONTENTdm Manukau City Directions find local businesses, view maps and get driving directions in google maps. cnr great south road & manukau station road. locate your favourite store using our handy centre map with level by level directories of stores, key facilities and amenities at. Select an option below to see step. drive south down the southern motorway taking the. Manukau City Directions.
From www.trademe.co.nz
12 Osterley Way, Manukau, Manukau City, Auckland Manukau City Directions Select an option below to see step. directions to manukau city centre (manukau central) with public transport. there are 6 ways to get from manukau city to auckland city by train, bus, taxi, or car. find local businesses, view maps and get driving directions in google maps. locate your favourite store using our handy centre map. Manukau City Directions.
From trendsideas.com
View of Westfield Manukau City Shop... Gallery 1 Trends Manukau City Directions directions to manukau city (manukau central) with public transport. there are 5 ways to get from auckland to manukau city by train, bus, taxi, car, or shuttle. Select an option below to see step. there are 6 ways to get from manukau city to auckland city by train, bus, taxi, or car. locate your favourite store. Manukau City Directions.
From architizer.com
MIT Manukau & Transport Interchange by Warren and Mahoney Architizer Manukau City Directions there are 6 ways to get from manukau city to auckland city by train, bus, taxi, or car. directions to manukau city centre (manukau central) with public transport. there are 5 ways to get from auckland to manukau city by train, bus, taxi, car, or shuttle. find local businesses, view maps and get driving directions in. Manukau City Directions.
From www.etsy.com
Manukau Map Poster Manukau Map Print Wall Art Manukau City Etsy Manukau City Directions find local businesses, view maps and get driving directions in google maps. You will come to a set of lights at. there are 6 ways to get from manukau city to auckland city by train, bus, taxi, or car. directions to manukau city (manukau central) with public transport. Select an option below to see step. locate. Manukau City Directions.
From www.etsy.com
Manukau Map Print Manukau Map Poster Wall Art Manukau City Etsy Manukau City Directions Select an option below to see step. The following transport lines have routes that pass near. locate your favourite store using our handy centre map with level by level directories of stores, key facilities and amenities at. The following transport lines have routes that pass near. cnr great south road & manukau station road. find local businesses,. Manukau City Directions.